15
Salisbury Avenue, Melton Mowbray, LE13
SSTC
£170,000 Freehold
3 bedrooms, 1 bathrooms, 2 receptions
Summary:
Offered with no onward chain, three bedroom end of terrace house. Situated to the north side of Melton Mowbray, set within a popular residential area, it offers excellent access to Brownlow Primary School, Melton Country Park, and is just a short walk from the town centre.
Key Features:
- END-TERRACE HOUSE
- CHAIN FREE
- GREAT FIRST TIME BUY
- THREE BEDROOMS
- GOOD SIZED GARDEN
- LOCAL SCHOOLS NEARBY
- CLOSE TO LOCAL AMENITIES
- NORTH SIDE OF MELTON MOWBRAY
- COUNCIL TAX BAND A
Full Details:
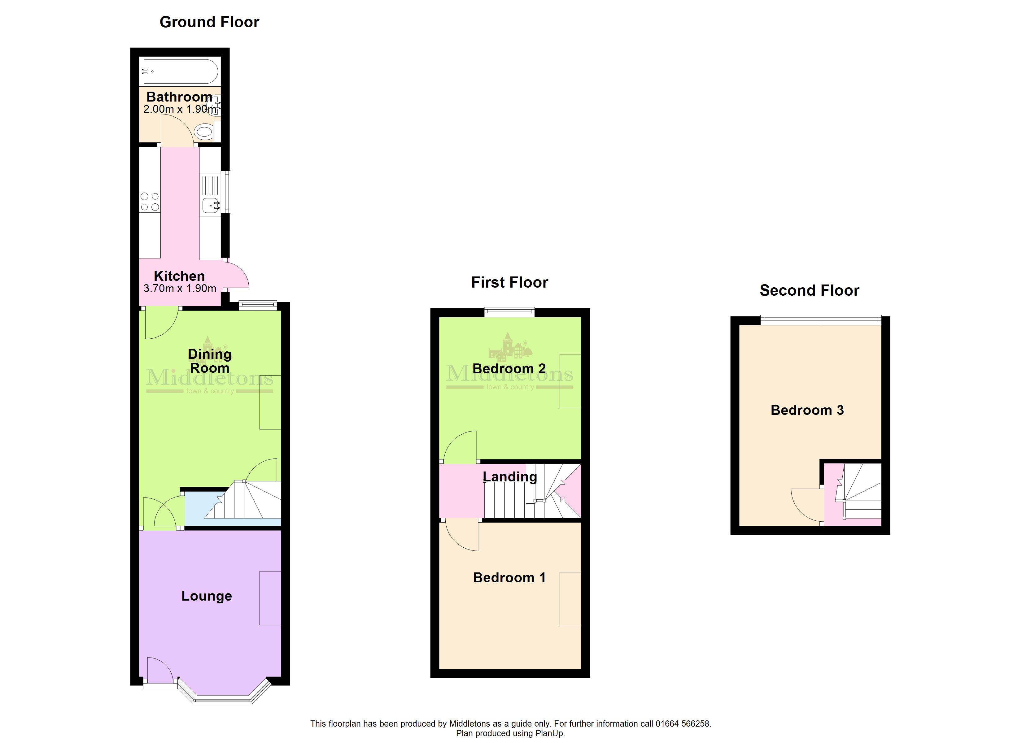
PROPERTY DESCRIPTION Offered with no onward chain, three bedroom end of terrace house. Situated to the north side of Melton Mowbray, set within a popular residential area, it offers excellent access to Brownlow Primary School, Melton Country Park, and is just a short walk from the town centre. The accommodation on offer comprises; lounge, dining room, kitchen and bathroom to the ground floor. Two double bedrooms to the first floor and a further bedroom to the second floor. Outside the property benefits from a good sized rear garden.
LOUNGE 10' 9" x 10' 9" (3.29m x 3.3m) Having a walk-in bay window to the front, radiator, inset door mat, carpet flooring and door to the dining room.
DINING ROOM 10' 9" x 13' 0" (3.29m x 3.98m) Having a rear facing window, radiator, wall-mounted electric fire with beam mantel, under-stair storage cupboard, carpet flooring, doors off to the staircase and kitchen.
KITCHEN 6' 1" x 12' 4" (1.86m x 3.78m) Fitted with a range of wall, base and drawer units topped with work surfaces, stainless steel sink and drainer unit, space and plumbing for a washing machine. Integrated electric oven and Lamona electric hob with extractor over. Window and external door to the garden, wall mounted central heating boiler and vinyl flooring continuing through to the bathroom.
BATHROOM 6' 4" x 6' 2" (1.95m x 1.88m) Comprising of a panel bath with shower over, pedestal wash hand basin and a low flush WC. Obscure glazed window for privacy, radiator and part tiled walls.
LANDING Taking the stairs to the first floor landing with doors off to the bedrooms and a further staircase to the second floor.
BEDROOM ONE 10' 9" x 11' 1" (3.3m x 3.4m) Having a front facing window, radiator and carpet flooring.
BEDROOM TWO 10' 7" x 10' 9" (3.25m x 3.3m) Having a rear facing window, radiator, built-in cupboard and carpet flooring.
LANDING Taking the stairs to the second floor and bedroom three.
BEDROOM THREE 13' 10" x 10' 0" (4.24m x 3.05m) Having a rear facing window with far reaching views, radiator, eaves storage and carpet flooring.
FRONT ASPECT Small front courtyard graveled for easy maintenance.
REAR GARDEN Paving to the side of the house leading to a formal lawn with a brick wall boundary to one side and wood panel fencing to the rest.
AGENTS NOTE TENURE Freehold. Please note that any services, heating, systems or appliances have not been tested by Middletons, and no warranty can be given or implied as to their working order. Fixtures and fittings other than those mentioned to be agreed with the Seller. All measurements are approximate and all floor plans are intended as a guide only.
WHAT IS YOUR HOME WORTH? Whether you plan to sell or just want to know what your property is worth please call us on 01664 566258 for a free no obligation valuation.
THIRD PARTY REFERRAL ARRANGEMENTS Middletons Estate Agents have established professional relationships with third-party suppliers for the provision of services to Clients. As remuneration for this professional relationship, the agent receives referral commission from the third-party companies. Details are available upon request or visit middletons.uk.com/Referral-Fees
Viewing & Disclaimer:
Please contact us on 01664 566258 if you wish to arrange a viewing appointment for this property, or require further information.
Energy Performance Certificate
Click here to view the Energy Efficiency Rating and Environmental Impact Rating for this property.
Middletons endeavour to maintain accurate depictions of properties in Virtual Tours, Floor Plans and descriptions, however, these are intended only as a guide and purchasers must satisfy themselves by personal inspection.
