24
Willow Road, Melton Mowbray, LE14
£675,000 Freehold
5 bedrooms, 3 bathrooms, 3 receptions
Summary:
This fantastic five-bedroom detached family home, built by Davidsons Homes, set within the highly sought-after village of Stathern offering an excellent primary school, a local store, a garage, and a thriving church community. More extensive shopping and leisure facilities can be found in the nearby market towns of Melton Mowbray and Bingham. Stathern is also ideally positioned for commuters, with convenient access to Nottingham, the A1, and Grantham—where regular rail services run to London King’s Cross and St Pancras.
Key Features:
- DETACHED MODERN HOME
- GARAGE/DRIVEWAY/EV CHARGER
- INTEGRATED SOLAR PANELS
- 10 YEAR NHBC WARRANTY
- LARGE SOUTH FACING GARDEN
- LOCAL SCHOOLS NEARBY
- VILLAGE WITH AMENITIES
- EPC RATING A
- COUNCIL TAX BAND TBC
Full Details:
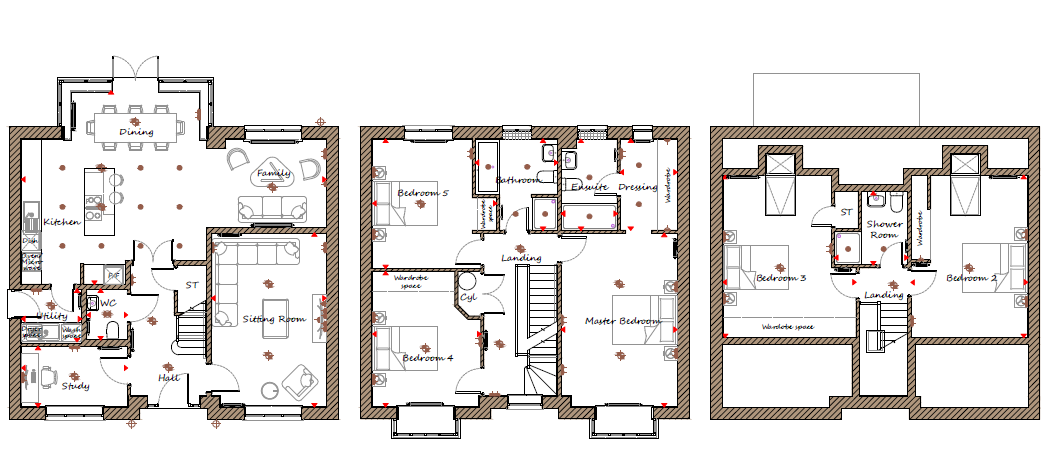
PROPERTY DESCRIPTION This fantastic five‑bedroom detached family home, built by Davidsons Homes, set within the highly sought‑after village of Stathern offering an excellent primary school, a local store, a garage, and a thriving church community. More extensive shopping and leisure facilities can be found in the nearby market towns of Melton Mowbray and Bingham. Stathern is also ideally positioned for commuters, with convenient access to Nottingham, the A1, and Grantham-where regular rail services run to London King's Cross and St Pancras.The accommodation on offer comprises; entrance hall, lounge, study, cloakroom, living dining kitchen and utility to the ground floor. The main bedroom with dressing room and ensuite shower room, two further bedrooms and a family bathroom to the first floor. A further two bedrooms and a shower room to the second floor. Outside the property benefits from ample off road parking, detached double garage and a good sized south facing rear garden.
ENTRANCE HALL Part glazed door with glazed side panels allowing plenty of natural light to filter into the welcoming hallway. Having stairs rising to the first floor, under stairs storage cupboard, radiator, laminate flooring and doors off to;
SITTING ROOM 11' 6" x 17' 6" (3.51m x 5.34m) This nicely proportioned room has a front facing window, two radiators, TV aerial point and carpet flooring.
STUDY 10' 7" x 6' 1" (3.25m x 1.86m) Having a front facing window, radiator and carpet flooring.
CLOAKROOM 4' 1" x 5' 1" (1.26m x 1.55m) Comprising of a close coupled, dual flush WC and a pedestal wash hand basin. Radiator, laminate flooring and extractor fan.
KITCHEN/DINER/FAMILY ROOM 30' 8" x 19' 5" (9.35m x 5.94m) A great open-plan space for the family to enjoy having defined kitchen, dining and lounge areas. The kitchen has been fitted with modern wall, base and drawer units with a central island upgraded to include Quartz work surfaces. Under-mount stainless steel one and a half bowl sink with mixer tap over, integrated appliances to include a dish washer, eye level double oven and grill and an electric hob. Seating area with With French doors and generous glazing, ensuring the room is bathed in natural light throughout the day, a further seating area with windows to the rear garden, two radiators, LED lighting and laminate flooring.
UTILITY ROOM 6' 0" x 5' 3" (1.84m x 1.62m) Fitted with a wall and base unit topped with Quartz work surface, stainless steel sink and drainer with mixer tap over, space and plumbing for a washing machine. External door to the driveway and laminate flooring.
LANDING ONE Taking the stairs to the first floor landing having a front facing window, built-in airing cupboard, further staircase to the second landing, and doors off to;
BEDROOM ONE 11' 7" x 17' 5" (3.55m x 5.33m) Generous main bedroom having a box bay window to the front, radiator, carpet flooring and an opening through to the dressing room and ensuite.
DRESSING ROOM 5' 8" x 9' 2" (1.74m x 2.8m) Having a front facing window, radiator, fitted wardrobes from Albert Henry Interiors, carpet flooring and a door to the ensuite.
ENSUITE 5' 7" x 9' 2" (1.71m x 2.8m) Comprising of a walk-in shower cubicle close coupled, dual flush WC , pedestal wash hand basin and a heated towel rail. Obscure glazed window, electric shaver socket, part tiled walls and vinyl flooring.
BEDROOM FOUR 10' 10" x 13' 7" (3.32m x 4.15m) Having a box bay window to the front, radiator and carpet flooring..
BEDROOM FIVE 12' 5" x 12' 11" (3.8m x 3.95m) Having a rear facing window with views of the garden, radiator and carpet flooring.
SHOWER ROOM 8' 3" x 9' 2" (2.53m x 2.8m) Comprising of a shower cubicle, double ended panel bath with central tap and shower attachment, pedestal wash hand basin, close coupled, dual flush WC and a heated towel rail. Obscure glazed window for privacy, extractor fan, part tiled walls and vinyl flooring.
LANDING TWO Having doors off to;
BEDROOM TWO 11' 8" x 16' 3" (3.58m x 4.97m) Having a Velux window with open countryside views, two radiators, fitted wardrobes from Albert Henry Interiors and carpet flooring.
SHOWER ROOM 7' 4" x 7' 4" (2.25m x 2.24m) Comprising of a shower cubicle, pedestal wash hand basin, close coupled, dual flush WC and a heated towel rail. Extractor fan, tile splash areas and vinyl flooring.
BEDROOM THREE 13' 4" x 16' 3" (4.08m x 4.97m) Having a Velux window with open countryside views, two radiators, eaves storage cupboard and carpet flooring.
FRONT ASPECT Bordered by shrubs with paved steps to the front door, driveway to the side providing ample off road parking and and EV charging point, access to the double garage and gated access to the rear garden.
DOUBLE GARAGE Detached garage having an up and over door with power sockets and lighting.
REAR GARDEN South facing garden having a paved patio adjacent to the house, formal lawn with ornamental shrub beds and wood panel fencing securing the boundary. The roof features six integrated solar panels for ECO living.
SOLAR PANELS The solar panels on this property are owned. Please ask for further details.
AGENTS NOTE TENURE Freehold. Please note that any services, heating, systems or appliances have not been tested by Middletons, and no warranty can be given or implied as to their working order. Fixtures and fittings other than those mentioned to be agreed with the Seller. All measurements are approximate and all floor plans are intended as a guide only.
WHAT IS YOUR HOME WORTH? Whether you plan to sell or just want to know what your property is worth please call us on 01664 566258 for a free no obligation valuation.
THIRD PARTY REFERRAL ARRANGEMENTS Middletons Estate Agents have established professional relationships with third-party suppliers for the provision of services to Clients. As remuneration for this professional relationship, the agent receives referral commission from the third-party companies. Details are available upon request or visit middletons.uk.com/Referral-Fees
MANAGEMENT CHARGES There is a service charge to maintain the communal areas. Please ask for further details.
Viewing & Disclaimer:
Please contact us on 01664 566258 if you wish to arrange a viewing appointment for this property, or require further information.
Energy Performance Certificate
Click here to view the Energy Efficiency Rating and Environmental Impact Rating for this property.
Middletons endeavour to maintain accurate depictions of properties in Virtual Tours, Floor Plans and descriptions, however, these are intended only as a guide and purchasers must satisfy themselves by personal inspection.
